Fitnesstudio
Erweiterung • Brandschutzsanierung • Innenarchitektur








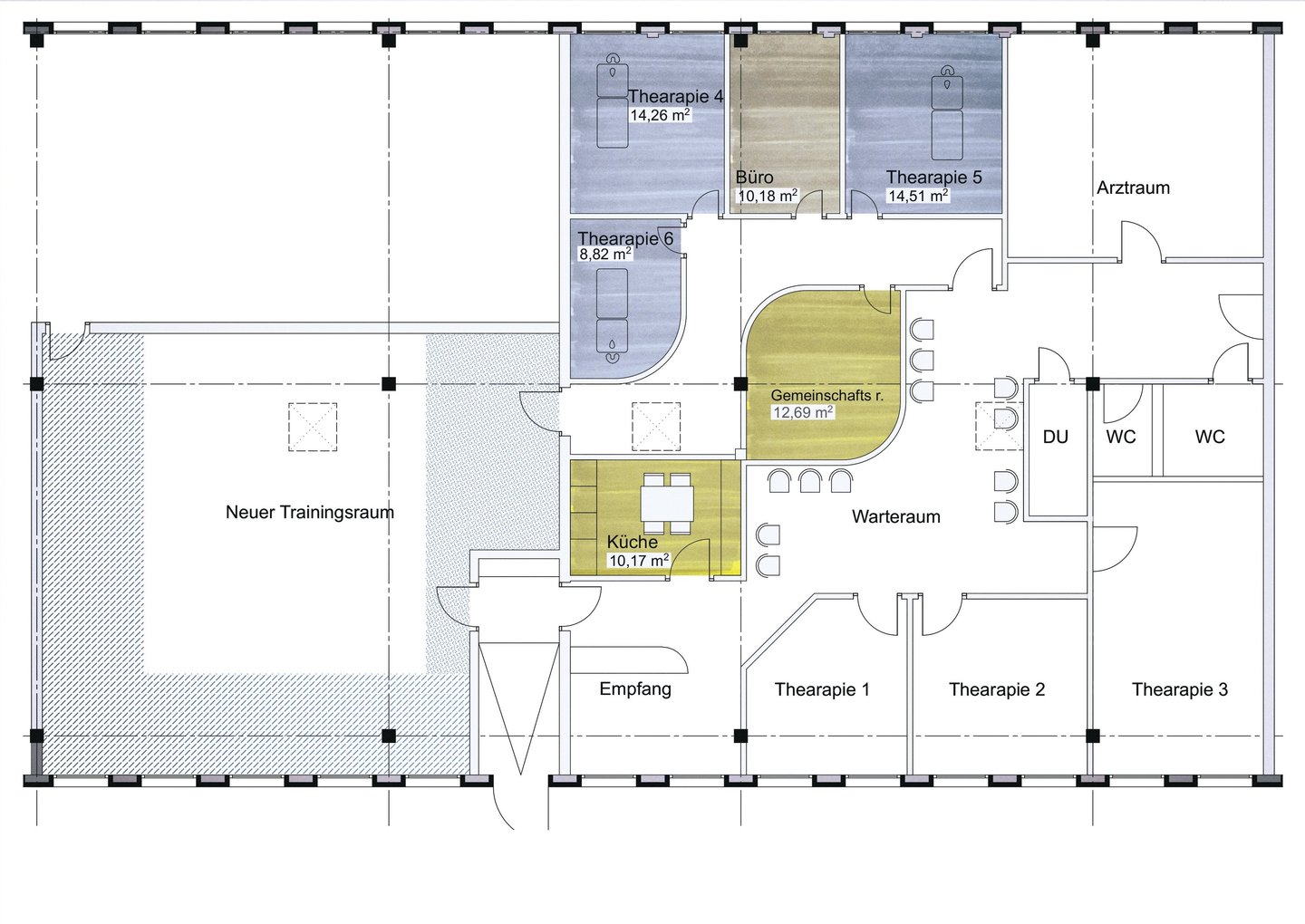
Das Projekt zur Renovierung und Erweiterung des Physiotherapie-Zentrums verbessert die Einrichtung mit neuen Therapieräumen, einem großzügigen Wartebereich und einer beruhigenden Atmosphäre. Holzpaneele, abgerundete Wände und durchdachte Beleuchtung tragen zu einer einladenden Umgebung bei. Der Bereich für Physiotherapie wird durch die Hinzufügung eines modernen Fitnessstudios mit einem komfortablen Ruhebereich erweitert. Ein neues Brandschutzkonzept wurde gemäß der Erweiterung des Projekts implementiert.




