Haus neugedacht

Anbau • Sanierung • Holzkonstruktion • Effizienzhaus KFW

Neues Wohnen im alten Kleid

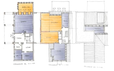
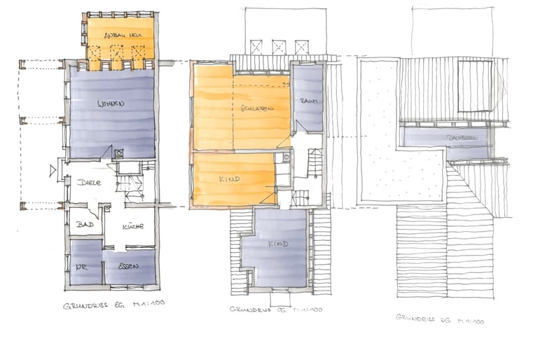
Sanierung einer Doppelhaushälfte in Nürnberg. Uns und dem Bauherren war es sehr wichtig, die Substanz und Atmosphäre des Gebäudes zu erhalten. Das Haus wurde in den 30er Jahren von der Familie selbst erbaut und besitzt daher einen emotionalen Wert. Durch vorsichtige Fassadengestaltung, präzise Eingriffe in den Grundriss, einem neuen zeitgenössischen Wohnzimmeranbau und modernster Technik wird das Haus den heutigen Bedürfnissen einer jungen Familie gerecht, ohne den Charme des Bestehenden zu verlieren.