Home
Projekte
Machbarkeitsstudien
Über uns
Kontakt
de
Deutsch
Home
Projekte
Machbarkeitsstudien
Über uns
Kontakt
de
Deutsch
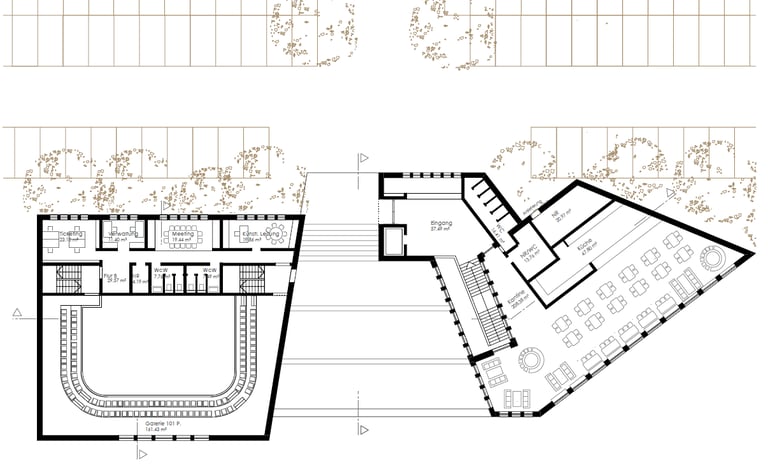
Theater - die Naturbühne
Neubau
Datenschutz
Impressum